SIGN UP CUSTOMER LOGIN
Main Photo

29 Total Photos [Click to View All]

Main Photo
Main Photo

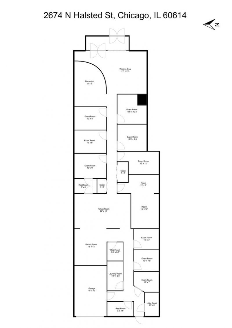
2674 N Halsted Street Chicago, IL 60614

$40.80 / Per SQFT
Active / MLS# 12402491 / Rental - Office / Chicago
0 Beds
2500 SqFt

Large commercial multi-suite office space for rent in Lincoln Park. The expansive space features an elegant waiting room/ reception area with exposed brick, modern tile floors and granite counter, 8 exam rooms/ private offices, a large centrally located Rehab room, break room, storage, laundry room, and 3 restrooms- one with a shower. One garage space and 1 outdoor parking space included. Rent is $8,500/ month. Tenant is responsible for verifying square footage. Owner is licensed Illinois Real Estate Broker.

Read More » Read Less »

Baird & Warner Kenneth Arrizola Agent Cell: 773.914.8480 Email

Property Details

Property Type: Rental - Office
Cooling: Central Air
Lot Size: 0.07 Acres
Stories: 1.0
Year Built: 1974

Feature Descriptions

Current Use: Medical/Dental
Electric: Other
Fire Protection: Fire Extinguisher/s
HVAC: Central Heat/Indiv Controls, Forced Air
Parking: 1-5 Spaces
Rental Term: Per SQFT
Tenant Pays: Air Conditioning, Electricity, Heat, Janitorial Service, Operating Stops, Insurance, Repairs, Scavenger, Varies by Tenant

Location

See details and scored characteristics about this location.

Listing Office: My Town Realty Group Inc

Listing Office Phone: 773-360-0456



Listing data and photos distributed by MLSGRID
Member Participants (and their affiliated licensees, if applicable) shall indicate on their websites that IDX information is provided exclusively for consumers’ personal non-commercial use, that it may not be used for any purpose other than to identify prospective properties consumers may be interested in purchasing, that the data is deemed reliable but is not guaranteed by MLS GRID, and that the use of the MLS GRID Data may be subject to an end user license agreement prescribed by the Member Participant’s applicable MLS if any and as amended from time to time. MLS GRID may, at its discretion, require use of other disclaimers as necessary to protect Member Participant, and/or their MLS from liability.
Based on information submitted to the MLS GRID. All data is obtained from various sources and may not have been verified by broker or MLS GRID. Supplied Open House Information is subject to change without notice. All information should be independently reviewed and verified for accuracy. Properties may or may not be listed by the office/agent presenting the information.


Login to my Baird & Warner account

Pixel