SIGN UP CUSTOMER LOGIN
Main Photo

4 Total Photos [Click to View All]

Main Photo
Main Photo

4800 S Michigan Avenue Chicago, IL 60615

$1,250,000
Pending / MLS# 12509780 / Multi Unit - Multiple / Chicago
10 Beds
7 Baths

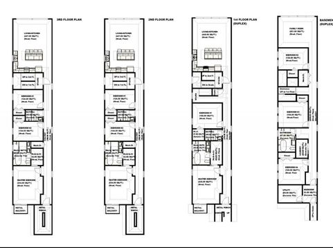
BRONZEVILLE NEW CONSTRUCTION!! Bring your clients to this huge ECO Friendly! 3 UNIT with Duplexed 1st floor unit! Building number 1 4808 S Michigan Ave, DELIVERY December 2025... 4 Multi Units to be built. First floor unit features a 3400sq ft 4bed 3bth duplex, the 2nd and 3rd floors are 1750sq ft 3bed 2bth units. Carport (3 vehicles) parking with EV charging station, all electric appliances, sleek modern designs and decor. The apartments are condo quality and could be converted to condos later if wanted. Floor plans are available, more detailed floor plans and 3D renderings can be emailed. For questions and serious inquiries please email or call.

Read More » Read Less »

Baird & Warner Kenneth Arrizola Agent Cell: 773.914.8480 Email

Mortgage Calculator

%
years/fixed
yearly
yearly (est.)
(Payments are an estimate and may vary by lender)

Estimated Payment

$ 3,142.36 per month $2,777.78 Principal & Interest $0.00 Property Tax (data not provided by mls) $364.58 Homeowner's Insurance
Get your competitive financing options.

Property Details

Property Type: Multi Unit - Multiple
Basement: Yes
Basement: Finished, Exterior Entry, Rec/Family Area, Walk-Up Access, Full, Walk-Out Access
Garage: 2
Heating: Heat Pump
Lot Size: 25 X 160
Roof Type: Flat
Year Built: 2025

Feature Descriptions

Exterior: Brick
Lot Dimensions: 25 X 160
Other Equipment: Multiple Water Heaters
Parcel#: 20101070120000
Parking: Off Site, Off Alley, Alley Access, Secured, Yes, Other, Garage
Sewer: Public Sewer
Total Rooms: 17
Township: Hyde Park
Water: Lake Michigan

Schools

School District: District 299

Disclaimer: The accuracy of all information regardless of source, including but not limited to square footage and lot size, is deemed reliable but not guaranteed nor warranted and should be personally verified through personal inspection by and/or with the appropriate professionals.

Location

See details and scored characteristics about this location.

Listing Office: RE/MAX Premier Luxury Collection

Listing Office Phone: 847-250-6391



Listing data and photos distributed by MLSGRID
Member Participants (and their affiliated licensees, if applicable) shall indicate on their websites that IDX information is provided exclusively for consumers’ personal non-commercial use, that it may not be used for any purpose other than to identify prospective properties consumers may be interested in purchasing, that the data is deemed reliable but is not guaranteed by MLS GRID, and that the use of the MLS GRID Data may be subject to an end user license agreement prescribed by the Member Participant’s applicable MLS if any and as amended from time to time. MLS GRID may, at its discretion, require use of other disclaimers as necessary to protect Member Participant, and/or their MLS from liability.
Based on information submitted to the MLS GRID. All data is obtained from various sources and may not have been verified by broker or MLS GRID. Supplied Open House Information is subject to change without notice. All information should be independently reviewed and verified for accuracy. Properties may or may not be listed by the office/agent presenting the information.


Login to my Baird & Warner account

Pixel