SIGN UP CUSTOMER LOGIN
Main Photo

16 Total Photos [Click to View All]

Main Photo
Main Photo

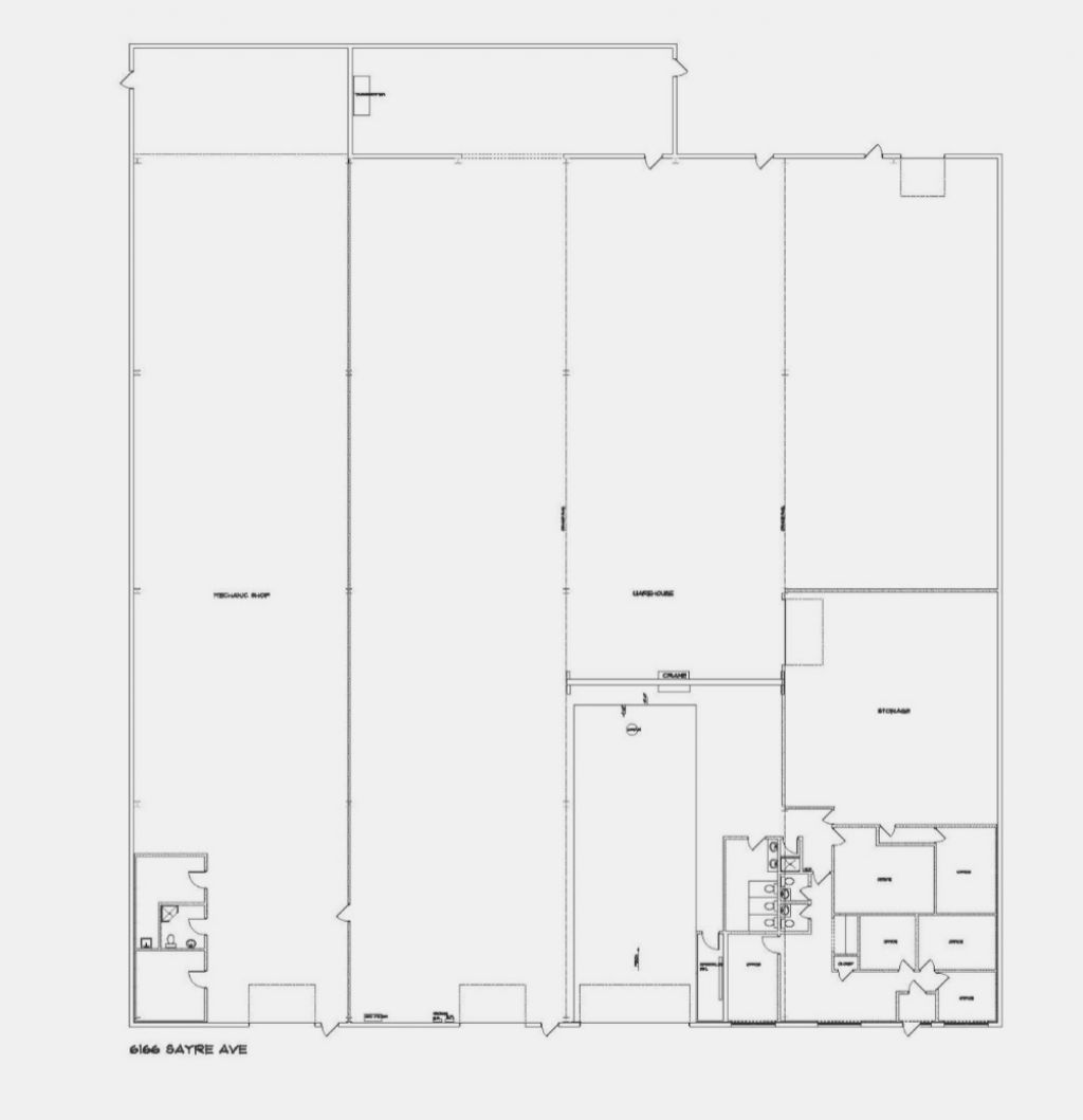
6166 S Sayre Avenue Chicago, IL 60638

$10.00 / Per SQFT
Active / MLS# 12566021 / Rental - Industrial / Chicago
0 Beds
20800 SqFt

Approximately 20,800 SF warehouse available for lease at the corner of 62nd Street and Sayre Avenue in Chicago's Clearing Industrial Park. The building features approximately 1,600 SF of newly built office space, with the balance dedicated to functional warehouse operations. One drive-in overhead door, and one doublewide recessed loading dock, 16-20 ft clear ceiling height, Two 3ton overhead cranes, Ample onsite parking, Easy street access for deliveries and pickups, 5 minutes to Midway International Airport, 7 minutes to I55,Convenient

Read More » Read Less »

Baird & Warner Kenneth Arrizola Agent Cell: 773.914.8480 Email

Property Details

Property Type: Rental - Industrial
Cooling: Central Air
Lot Size: 1.42 Acres
Stories: 1.0
Year Built: 1974

Feature Descriptions

Electric: Circuit Breakers
Fire Protection: Sprinklers-Wet
HVAC: Ceiling Units
Parking: 19-30 Spaces
Rental Term: Per SQFT
Tenant Pays: Taxes, All Utilities
Units: 1

Location

See details and scored characteristics about this location.

Listing Office: Network Property Managment LLC

Listing Office Phone: 708-873-5540



Listing data and photos distributed by MLSGRID
Member Participants (and their affiliated licensees, if applicable) shall indicate on their websites that IDX information is provided exclusively for consumers’ personal non-commercial use, that it may not be used for any purpose other than to identify prospective properties consumers may be interested in purchasing, that the data is deemed reliable but is not guaranteed by MLS GRID, and that the use of the MLS GRID Data may be subject to an end user license agreement prescribed by the Member Participant’s applicable MLS if any and as amended from time to time. MLS GRID may, at its discretion, require use of other disclaimers as necessary to protect Member Participant, and/or their MLS from liability.
Based on information submitted to the MLS GRID. All data is obtained from various sources and may not have been verified by broker or MLS GRID. Supplied Open House Information is subject to change without notice. All information should be independently reviewed and verified for accuracy. Properties may or may not be listed by the office/agent presenting the information.


Login to my Baird & Warner account

Pixel